Listed by TXRE Properties
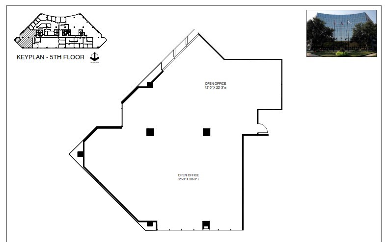
Half the fifth floor in the building, lots of open space for cubicles and desks. The space is completely open and ready for build-out. 7929 Brookriver went through a $1 million dollar renovation in 2023 and is a 7-story aesthetically pleasing and functional office space. Highlights include a new heating and cooling system, new tenant lounge with full catering bar, wifi, tvs, and a full kitchen, 30 person training room, on-site security and a day porter, gated and secure parking. Located on the southeast quadrant of Interstate 35 (Stemmons Freeway) and Mockingbird Lane intersection, one of Dallas's most traveled intersections. The location provides excellent visibility to the highly trafficked freeway. Located near the Medical District and Design District with easy access to I35. Ten minutes from Dallas Love Field and 15 minutes from DFW Airport.

Listing Tools

Property Details of 7929 Brookriver Drive, Unit 525

Property Details

Exterior Features

Utilities and Appliances

Community

Map Location

Based on information submitted to North Texas Real Estate Information Services as of November 11, 2025 12:11 AM EST. All data is deemed reliable but is not guaranteed accurate by the MLS. All information should be independently reviewed and verified for accuracy. IDX information is provided exclusively for consumers’ personal, noncommercial use and may not be used for any purpose other than to identify prospective properties consumers may be interested in purchasing.

Hi there! How can we help you?

Contact us using the form below or give us a call.

Send Us A Message:

I agree to receive marketing and customer service calls and text messages from Trinity Premier Properties and Parker Point Realty. To opt out, you can reply 'stop' at any time or click the unsubscribe link in the emails. Consent is not a condition of purchase. Msg/data rates may apply. Msg frequency varies. Privacy Policy.

Do not fill in this field:

This site is protected by reCAPTCHA and the Google Privacy Policy and Terms of Service apply.

Hi there! How can we help you?

Contact us using the form below or give us a call.

Send Us A Message:

Do not fill in this field:

This site is protected by reCAPTCHA and the Google Privacy Policy and Terms of Service apply.

Hi there! How can we help you?

Contact us using the form below or give us a call.

Send Us A Message:

Do not fill in this field:

This site is protected by reCAPTCHA and the Google Privacy Policy and Terms of Service apply.

Do not fill in this field:

This site is protected by reCAPTCHA and the Google Privacy Policy and Terms of Service apply.

Do not fill in this field:

This site is protected by reCAPTCHA and the Google Privacy Policy and Terms of Service apply.

Do not fill in this field:

This site is protected by reCAPTCHA and the Google Privacy Policy and Terms of Service apply.

$

Do not fill in this field:

This site is protected by reCAPTCHA and the Google Privacy Policy and Terms of Service apply.